Headshot for Associate Silvia Alcaraz
  1. Silvia Alcaraz, REALTOR ®
  2. Premier Realty Group
  3. Your Guiding Light to Homeownership
  4. sagoldenhome@gmail.com
8001 Circuit Of The Americas Blvd 502, Del Valle, TX 78617
  • MLS#: ACT2164857 ( Residential )
  • Street Address: 8001 Circuit Of The Americas Blvd 502
  • Viewed: 10
  • Price: $2,700,000
  • Price sqft: $0
  • Waterfront: No
  • Waterfront Type: None
  • Year Built: 2025
  • Bldg sqft: 0
  • Total Baths: 2
  • Full Baths: 2
  • Garage / Parking Spaces: 20
  • Days On Market: 90
  • Additional Information
  • Geolocation: 30.1426 / -97.6252
  • County: TRAVIS
  • City: Del Valle
  • Zipcode: 78617
  • Subdivision: Circuit Of The Americas
  • Building: Circuit Of The Americas
  • Elementary School: Popham
  • Middle School: Del Valle
  • High School: Del Valle
  • Provided by: Compass RE Texas, LLC
  • Contact: Matt Holm
  • (512) 575-3644
  • DMCA Notice
  • Description
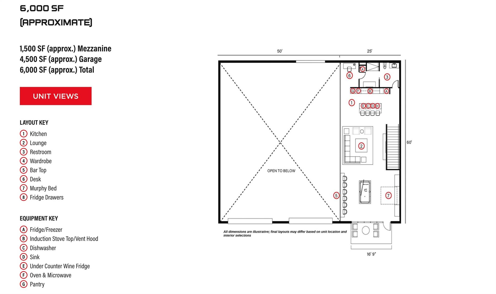
    Welcome to T11 Car Community, where family adventure and love of racing meets refined living. Austin's Premier Motorsport Lifestyle Community. More than a destination for drivers, T11 is a lifestyle experience. This unit is the XXL floorplan. The listed price is the unfinished shell cost which includes insulated exterior walls & ceiling, installed A/C, and glass + metal garage door. Photos show various finished out examples starting at $3,660,000. Each residence is thoughtfully designed for connection a place to entertain friends, spend weekends together, and enjoy unforgettable moments surrounded by Austins most exciting attractions. Whether its the thrill of race weekend watching from the private viewing platform, or a relaxing family getaway, T11 offers more than ownership its access to it all. Imagine having a place to stay after live concerts, a visit to the amusement park, race day, or a family friendly festival. Instead of fighting traffic with 100K other people, you arrive at to your own gated entrance and park at your own place! Potential Uses: Weekend residence or guest suite; Podcast or content studio; Entertaining venue or private bar; Office or creative space; Collectors showcase with lift capacity for multiple vehicles Just beyond your doorstep, COTA is transforming into a year round playground for all ages with a full scale 34 ride amusement park coming soon! Future, proposed, potential amenities include: 1000 Room Hotel with Convention Center, Second Track for Turning and Testing, Water Slide Park, 18 Hole Golf Course, Shopping and Dining, Indoor/Outdoor Sports Complex.
Request More Information
  • All fields are required.
Features
Waterfront Description
  1. None
Accessibility Features
  1. None
Appliances
  1. See Remarks
Home Owners Association Fee
  1. 1460.00
Home Owners Association Fee Includes
  1. See Remarks
  2. Common Area Maintenance
Association Name
  1. see remarks
Builder Name
  1. COTA
Carport Spaces
  1. 0.00
Close Date
  1. 0000-00-00
Cooling
  1. Central Air
Country
  1. US
Covered Spaces
  1. 20.00
Exterior Features
  1. Private Entrance
  2. Restricted Access
Fencing
  1. None
Flooring
  1. Concrete
Garage Spaces
  1. 20.00
Green Energy Efficient
  1. Other/See Remarks
Heating
  1. Central
High School
  1. Del Valle
Insurance Expense
  1. 0.00
Interior Features
  1. See Remarks
Legal Description
  1. T-11 CAR CONDOMINIUMS UNT 502 PLUS % INT IN COM AREA
Levels
  1. Two
Living Area
  1. 6000.00
Lot Features
  1. None
Middle School
  1. Del Valle
Area Major
  1. SE
Net Operating Income
  1. 0.00
New Construction Yes / No
  1. Yes
Open Parking Spaces
  1. 0.00
Other Expense
  1. 0.00
Other Structures
  1. See Remarks
Parcel Number
  1. 8001 Circuit of the Americas Blvd #502
Parking Features
  1. Attached
  2. Gated
Pool Features
  1. None
Property Condition
  1. New Construction
Property Type
  1. Residential
Roof
  1. Metal
School Elementary
  1. Popham
Sewer
  1. Public Sewer
Tax Year
  1. 2025
Unit Number
  1. 502
Utilities
  1. Electricity Available
  2. Sewer Available
  3. Water Available
View
  1. See Remarks
Views
  1. 10
Virtual Tour Url
  1. https://holmteamaustin.com/developments/t11-car-community
Water Source
  1. Public
Year Built
  1. 2025
Year Built Source
  1. Public Records
Liked Listings
Headshot for Associate Silvia Alcaraz
  1. Silvia Alcaraz, REALTOR ®
  2. Premier Realty Group
  3. Your Guiding Light to Homeownership
  4. sagoldenhome@gmail.com